Project undertaken during semester of study at the University of Plymouth BA (Hons) Architecture in the spring semester of 2024.
Location:
Plymouth, United Kingdom
Date:
Spring 2024

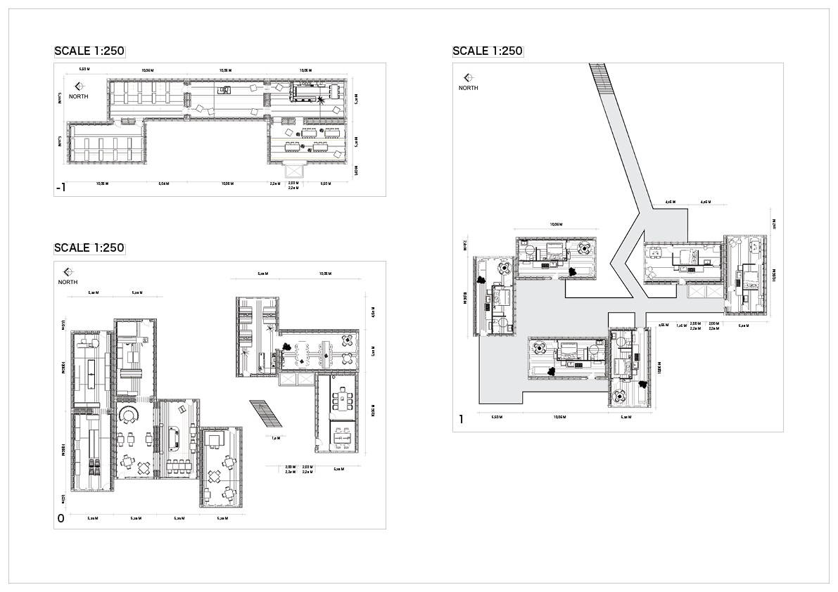
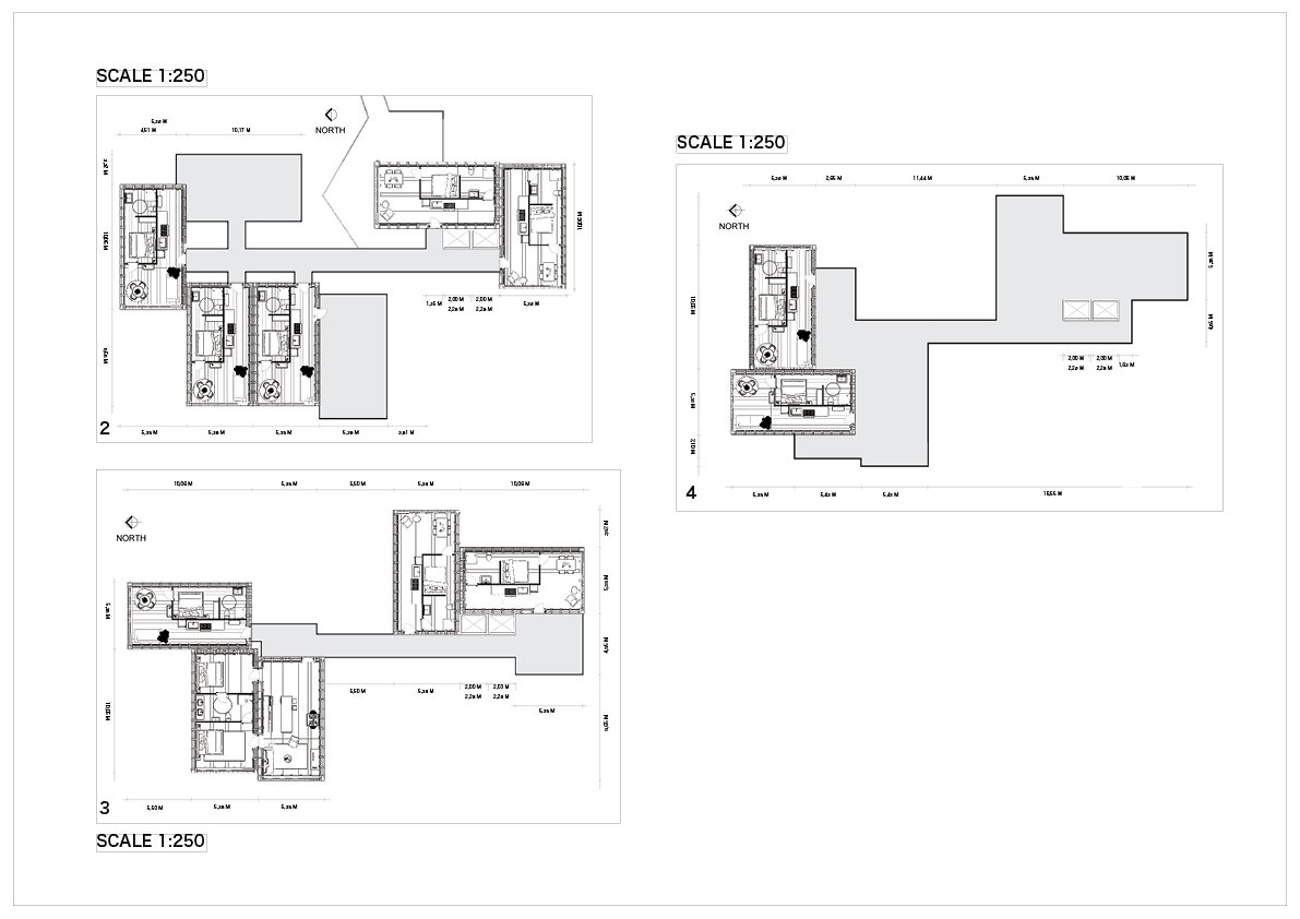
During my exchange semester at the University of Plymouth, I worked on a proposal for the assigned site on one of the central streets within the city, Armada Way.
My design is a modular (natural) timber unit building, which embodies the concept of Double Design proposed by Michael Cassidy, one of my lecturers during this semester.
The building excels in its adaptability and modularity, embracing the concept of double design and working towards the net zero 2030 goals proposed by the RIBA.






By creating a material strategy working towards the RIBA net zero 2030 goals, I was able to technically and aesthetically design a sustainable- and adaptable building, design with future-proofing in mind.




Next to the building details & envelope shown above, I was able to create some stills as well shown below.


